


LOKACIJA
Ovaj stan se nalazi u Bečićima, 4 km od centra Budve. Plaža i more su udaljeni 200 m od stana. Aerodrom Tivat je udaljen 23 km, a aerodrom Podgorica 60 km od stana. Razni restorani, prodavnice prehrambenih proizvoda, barovi i hoteli nalaze se u neposrednoj blizini stana.
O PROJEKTU
Zgrada ima 5 spratova, dok se stan nalazi na 2. spratu. Postoji mogućnost kupovine parking mesta, cena se kreće od 25.000 do 32.000 evra, u zavisnosti od veličine. Zgrada je povezana asfaltnim putem sa glavnim putem.
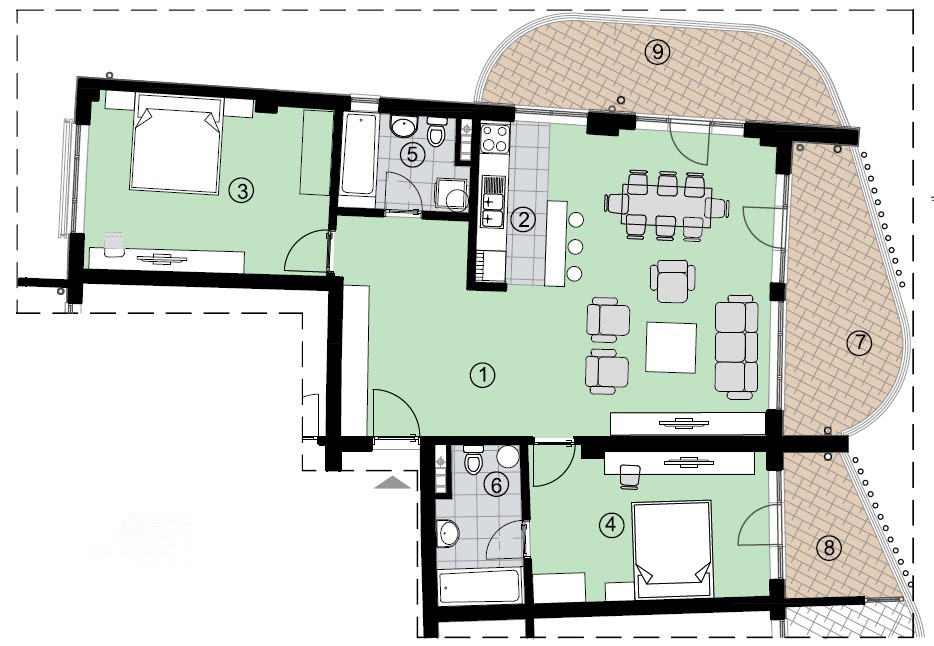
OPIS STANA
Struktura stana: hodnik, dnevna soba sa kuhinjom i trpezarijskim stolom, 2 spavaća sobe, 2 kupatila i 3 terase. Ima pogled na more. Stan je nenamešten sa završenim pločicama, završenim podovima, opremljenim kupatilom i opremljenom klima uređajem.
OPIS NAMJENE STANA
Ovaj stan je savršen za letnji dom i kratkoročno iznajmljivanje. Blizina plaže, restorana, prodavnica prehrambenih proizvoda, barova i hotela čini ga savršenim za kratkoročno iznajmljivanje. Ovo je prilika za kupca da stekne stan koji može imati povraćaj investicije.
OPIS OPSTINE
Budva spaja tradiciju i savremenost – ima dugu istoriju u Budvi Stari grad koji traje više od 2,5 milenijuma, a sa druge strane grad se razvija na nov moderan način. Ovaj kontrast stvara jedinstvenu energiju Budve, koja vrvi i mesecima van glavne turističke sezone. Budva privlači strane investicije, a sada je u toku izgradnja nekoliko velikih nekretnina i turističkih projekata.
Još jedna prednost Budve je ljepota duge obale Budvanske rivijere na kojoj se nalazi više od 30 zadivljujućih pješčanih i kamenitih plaža. Za one koji su u potrazi za sporijim tempom života, budvanska sela u regionima Budvanske rivijere nude mir, prelepu prirodu, pogled na more i domaću hranu, dok je urbani centar Budve udaljen samo 15 minuta.
Get in touch with us today
Donji bulevar bb
Hotel Bracera
81310 Budva
Montenegro




.webp)







.jpg)



