


LOCATION
This townhouse is located in Tivat, 1,5km away from the city center. The beach and the sea are 100m away from the house. Tivat airport is 5km away and Podgorica airport is 90km away from the house. Various restaurants, grocery shops, bars and boutiques are in close vicinity to the house.
ABOUT THE PROJECT
The townhouse has 4 levels. It has a pool that is on the top of the house. The house has a garage spot. It is connected by an asphalt road to the main road.
DESCRIPTION OF THE HOUSE
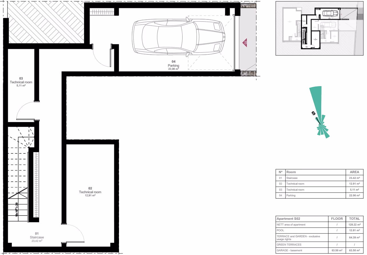
Structure of the house:
Level -1:
• Garage
• 2 technical rooms
• staircase
• Level 0:
• hallway
• toilet
• living room with kitchen and dining table
• staircase
• terrace
Level 1:
• hallway with staircase
• laundry
• 2 bedrooms
• 2 bathrooms
Level 2:
• hallway with staircase
• terrace
• pool
The house has view of the sea and the mountains that surround it. It is new and it is unfurnished.
WHY CHOOSE THIS HOUSE
This house is perfect for a summer home and short term renting. Its proximity to the beach, restaurants, grocery shops, boutiques and bars makes it a perfect short term rental. This is an opportunity for the buyer to acquire a house that can have a return on investment.
DESCRIPTION OF THE REGION AND MUNICIPALITY
With hot, Mediterranean summers and mild, sunny winters, Tivat residents enjoy just over 280 sunny days per year, leaving much time to explore the local environment, sea, mountains, historical towns and cultural heritage even off-season. Just a short drive away from the ski regions, the small coastal town is a prime base for exploring Montenegro’s wild beauty, in the aftermath of the summer hustle.
Located in the UNESCO-protected Boka Bay, often referred to as Europe’s southernmost fjord, Tivat is home to an outstanding natural environment, offering panoramic sea and mountain views, exceptional beauty and local charm.
Get in touch with us today
Donji bulevar bb
Hotel Bracera
81310 Budva
Montenegro




.webp)
























